Základní informace
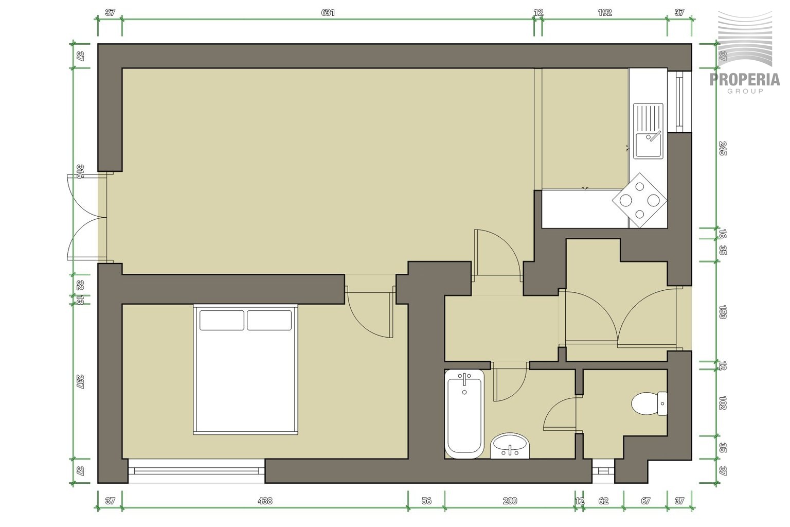
Představujeme Vám byt 2+kk o výměře 44,8 m2, který se nachází ve zvýšeném přízemí bytového domu. Tento byt je ideální pro ty, kteří hledají nové bydlení.Obývací pokoj je dominantou bytu díky svému modernímu francouzskému oknu. Ložnici dominuje vestavěná skříň a krásné zrcadlo. Místnosti jsou navrženy tak, aby jste měli dostatek místa a cítili se pohodlně.
Z prostorné koupelny vstoupíte na samostatné wc, kterému nechybí okénko.
Vše je postaveno ve standardu 21. století, kolaudace proběhla v roce 2001.
Byt je se splacenou anuitou a fond oprav je v plusových číslech. Bytový dům navíc nemá žádný úvěr.
K jednotce náleží také sklep.
Okolí
Nemovitost se nachází v lázeňském a rekreačním městě Třeboň, které leží v Třeboňské pánvi na Zlaté stoce mezi rybníky Svět a Rožmberk. Toto je ideální místo pro milovníky přírody a klidu.
Rozměry
Obývací pokoj 19,80 m2
Ložnice 10,60 m2
Kuch. kout 5,10 m2
Koupelna + WC 4,60 m2
Předsíň 1,90 m2
Zádveří 2,80 m2
Sklep 1,0 m2
Soubory ke stažení
Umístění nemovitosti
PRODÁNO
Kategorie |
Byty 2+kk |
Okres |
Jindřichův Hradec |
Vlastnictví |
Družstevní |
Plocha užitná |
45 m2 |
Počet podlaží |
3 |
Podlaží umístění |
1 |
Stav objektu |
Velmi dobrý |
Budova |
Cihlová |
Poloha objektu |
Samostatný |
Umístění objektu |
Klidná část obce |
Zástavba |
Obytná |
Rok kolaudace |
2001 |
En. náročnost b. |
D - Méně úsporná |
Ukazatel ENB |
148 kWh/m2/rok |
podle vyhlášky |
č. 78/2013 Sb. |
Sklep |
Ano (1 m2) |
Zařízený |
Částečně |
Komunikace |
Asfaltová, Betonová, Zpevněná |
Doprava |
Autobus, MHD, Silnice |
Voda |
Dálkový vodovod |
Elektřina |
230V |
Plyn |
Plynovod |
Odpad |
Veřejná kanalizace |
Topení |
Ústřední plynové |
Evidenční číslo |
02696 |